4427 - 53 STREET
3 Bedrooms | 2.5 Bathrooms | bonus room | 1707 sq ft
Creekside, Rocky Mtn. House
THE PAXTON
Balance peaceful scenic views with fun year-round activities and programs when you live in Creekside
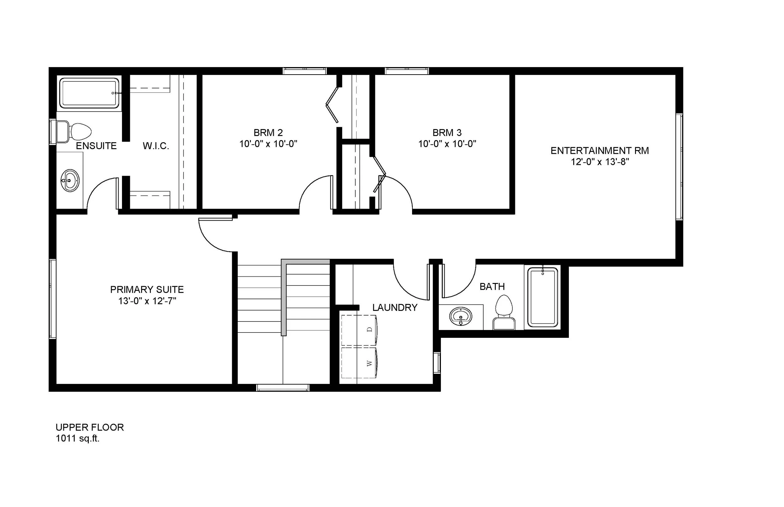
One of our most popular 2-storey home designs; ideal for entertaining and everyday family life with the open-concept main floor
Spacious kitchen with 4 stainless steel appliances, quartz countertops, center island, and walk-in pantry
Bright primary suite features an ensuite with attached large walk-in closet
Spacious upper floor laundry room, with additional linen shelving
Bonus entertainment room upstairs; great for an office space, playroom, or movie nights
458 sqft of additional space on the lower floor for future development; ideal for a fourth bedroom, full bathroom, and great-sized rec room
10 x 10 Rear deck
Upgraded 22 x 26 attached garage with upgraded 16 x 8 overhead door
Offered at $499,900
This home is currently under construction and estimated for possession in June. *Note, the advertised rendering is a stock model and for visual purposes only. 4427 53 Street will be similar, but not identical.
